top of page
M.ARKITEKTUR
Sakta växer en härlig serie fram med ett antal olika huskroppar ur serien M.Arkitektur.


Nära Naturen
Detta hus består av ett huvudhus där de sociala ytorna finns samt ett master bedroom. Det huset kan kombineras med ett gästhus, kontor, Attefallare eller bastu.


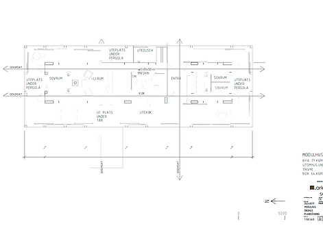
Nära Naturen Attefall 30
Här finner ni en Attefallare som ofta inte är bygglovspliktig. Smart design som skapar massor med härliga ytor även ute vilket gör att även detta lilla hus känns luftigt och härligt.
Även denna huskropp kombineras gärna med ett förråd eller en bastu.

Se skisser på huvudhuset + gästhus
Se skisser på Attefall

Vi kombinerar gärna flera byggnader för att skapa en gårdsbildning som passar er tomt och era behov. Nedan kan ni se inspiration på hur de olika byggnaderna kan samspela.

Till Salu: Products
bottom of page
